Dein Platz über der Stadt – DG-Wohnung mit XXL- Dachterrasse
-
Wohnen mit Weitblick – Über den Dächern von Ferlach
In bester Innenstadtlage von Ferlach wartet diese charmante Dachgeschosswohnung in einem stilvollen Stadthaus auf neue Mieter*innen. Sie verbindet urbanes Lebensgefühl mit Ruhe und Weitblick – perfekt für alle, die das Besondere suchen.
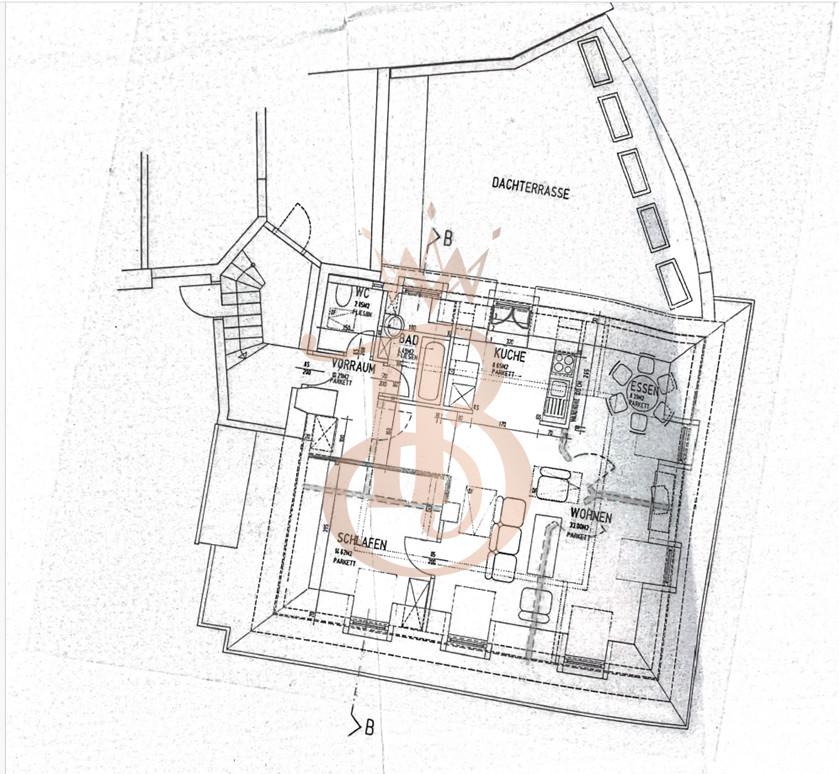
Auf rund 82 m² Wohnfläche bietet die Wohnung helle, freundlich gestaltete Räume, eine angenehme Raumhöhe und eine ideale Aufteilung für Singles oder Paare.
Das absolute Highlight:
Die großzügige Dachterrasse, die ausschließlich zu dieser Wohnung gehört, lädt mit herrlichem Ausblick über die Dächer der Stadt zum Entspannen und Genießen ein – ob morgens mit Kaffee oder abends beim Sundowner.
Weitere Highlights im Überblick:
– zentrale, aber ruhige Lage in einem gepflegten Stadthaus
– ein geschützter, kleiner Innenhof zur Mitbenützung
– alle Wege des täglichen Lebens fußläufig erreichbar
– gute Anbindung Richtung Klagenfurt und Umgebung
– verfügbar ab 01.09.2025
– Miete: € 890,– pauschal inkl. Betriebskosten
Ein Objekt mit vielen Facetten – und ganz viel Potenzial mitten in Ferlach.
Sie möchten mehr erfahren? Dann freue ich mich auf Ihre Anfrage. Mit Angabe Ihre vollständigen Kontaktdaten (Name, Telefonnumer, E-Mail Adresse) erhalten Sie rasch die gewünschte Unterlagen.
Ihre Monika Balint -
Flächen
- Wohnfläche: 82 m²
- Zimmer insgesamt: 2
- Schlafzimmer: 1
- Badezimmer: 1
- Terrassen: 1
Zustand & Erschließung
- Zustand: modernisiert
Sonstiges
- Immobilie ist verfügbar ab: 01.09.2025
- Haustiere erlaubt: ja
-
BÖDEN
– Fliesen
– Parkett
– HolzdielenAUSSTATTUNG
– 2-Scheiben-Isolierglasfenster (1997) im Altbau DG und NeubauHEIZUNG
– Buderus Öl-Zentralheizung
– Kunststofftank (4.000l)
– Warmwasser über E-Boiler
– Fernwärme-Anschluss im Haus (Umstellung jederzeit möglich, Anschlussgebühren bereits bezahlt)- Heizungsart: Zentralheizung, Fernheizung
- Befeuerung: Öl
- Badausstattung: Badewanne, Fenster
- Küche: Einbauküche, Offene Küche
-
- HWB-Wert: 102,00 kWh/(m²*a)
- fGEE-Wert: 2,98
- Primärenergieträger: Öl
- Energieausweis-Gebäudeart: Wohngebäude
-
Die befindet sich in zentraler Lage von Ferlach, direkt am Hauptplatz – einer der begehrtesten Adressen der Stadt. Hier profitieren Sie von einer ausgezeichneten Infrastruktur und kurzen Wegen im Alltag.
Geschäfte des täglichen Bedarfs, Supermärkte, Bäckereien, Banken, Apotheken und Gastronomiebetriebe befinden sich in unmittelbarer Umgebung und sind bequem fußläufig erreichbar. Auch Schulen, Kindergärten, Ärzte sowie das Gemeindeamt liegen nur wenige Gehminuten entfernt.
Dank der zentralen Lage ist das Objekt auch verkehrstechnisch bestens angebunden: Eine Bushaltestelle befindet sich in direkter Nähe, die Landeshauptstadt Klagenfurt ist mit dem Auto in etwa 20 Minuten erreichbar. Auch die slowenische Grenze liegt nicht weit entfernt – ideal für grenzüberschreitend Tätige.
Die Umgebung punktet nicht nur mit urbanem Komfort, sondern auch mit hohem Freizeitwert: Natur, Radwege, die Drau und die umliegende Bergwelt laden zum Erholen und Aktivsein ein.
Ein Standort mit hoher Lebens- und Arbeitsqualität – zentral, vielseitig und lebenswert.
INFRASTRUKTUR
– 50 m zur Adler-Apotheke
– 500 m zum Eurospar
– 800 m zum Billa, DM, Hofer, Karawanken-Apotheke
– 3,6 km zum Badeteich Strau und Badesee Reinig
– 12 km ins Bodental
– 15 km in das Zentrum der Klagenfurter Innenstadt
– 17 km zum Wörthersee
– 67 km nach Laibach / Ljubljana
Grundrisse














































