Attraktives Stadthaus in zentraler Lage – ideal für Anleger & Eigennutzer
-
Charmantes Stadthaus in begehrter Innenstadtlage von Ferlach – Wohnen und Arbeiten unter einem Dach
In bester Lage von Ferlach präsentiert sich dieses charmante Stadthaus als wahres Multitalent: Es vereint attraktiven Wohnraum, vielfältige Nutzungsmöglichkeiten und eine zentrale, dennoch ruhige Lage.
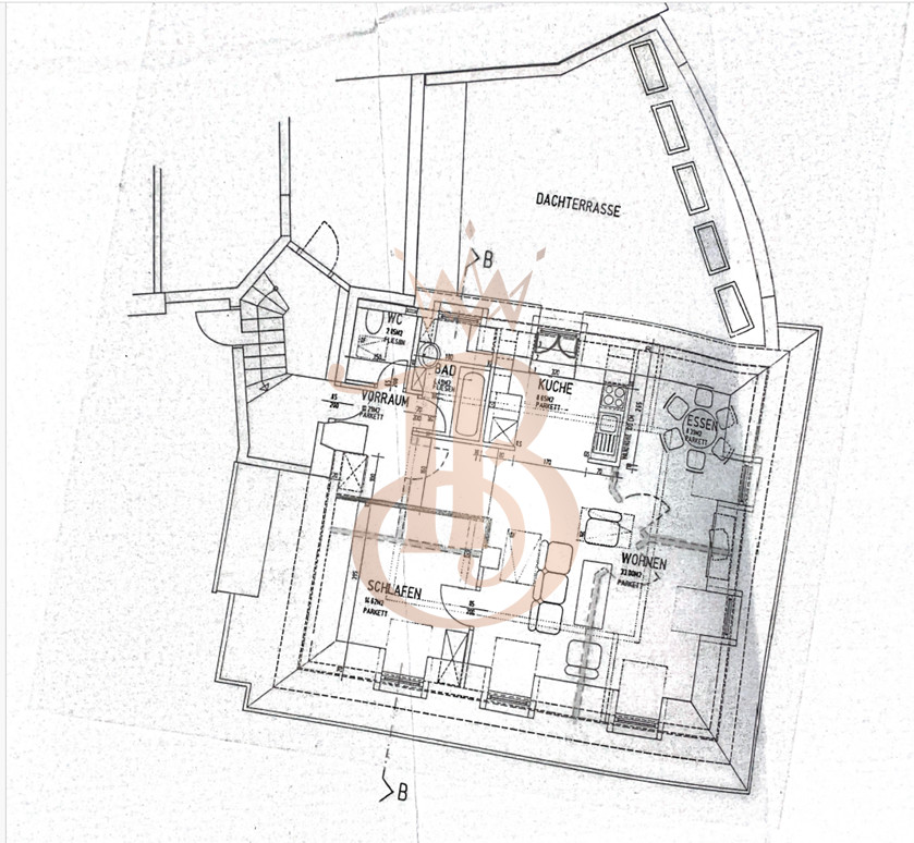
Auf insgesamt ca. 334 m² Nutzfläche bietet das Objekt:
– drei gut aufgeteilte Wohnungen
– ein gepflegtes Geschäftslokal mit Schaufensterfläche
– eine sonnige Dachterrasse mit Blick über die Dächer der Stadt
– praktische Büro, Abstell- und Lagerräume
– einen kleinen, geschützten Innenhof
– eine rd. 25m² Passage mit Schaufenstern
Das Haus überzeugt durch seine flexible Nutzung: Ob als Ertragsobjekt zur Vermietung, als Generationenhaus oder für eine Kombination aus Wohnen und Arbeiten – hier stehen Ihnen zahlreiche Möglichkeiten offen.
Die Wohnungen sind hell, freundlich und verfügen über eine angenehme Raumaufteilung und Raumhöhe. Das Geschäftslokal im Erdgeschoss bietet ideale Voraussetzungen für Einzelhandel, Büro oder Dienstleistung.
Highlights auf einen Blick:
– begehrte Innenstadtlage – alle Wege des täglichen Lebens in unmittelbarer Nähe
– gute Erreichbarkeit und Anbindung
– vielseitige Nutzungsmöglichkeiten
– solide Bausubstanz
– attraktive Gestaltungspotenziale für individuelle Ideen
Das Stadthaus eignet sich sowohl für Investoren als auch für Eigennutzer, die Wohnen und Arbeiten perfekt verbinden möchten.
Ein Objekt mit vielen Facetten – mitten im Herzen von Ferlach.
Sie möchten mehr erfahren? Dann freue ich mich auf Ihre Anfrage. Mit Angabe Ihre vollständigen Kontaktdaten (Name, Telefonnumer, E-Mail Adresse) erhalten Sie rasch die gewünschte Unterlagen.
Ihre Monika Balint -
Flächen
- Wohnfläche: 334 m²
- Grundstücksfläche: 348 m²
Zustand & Erschließung
- Zustand: modernisiert
-
BÖDEN
– Fliesen
– Parkett
– HolzdielenAUSSTATTUNG
– 2-Scheiben-Isolierglasfenster (1997) im Altbau DG und Neubau
– Kastenfenster im Altbau 1.OG
– Kachelofen in TOP 2HEIZUNG
– Buderus Öl-Zentralheizung
– Kunststofftank (4.000l)
– Warmwasser über E-Boiler
– Fernwärme-Anschluss im Haus (Umstellung jederzeit möglich, Anschlussgebühren bereits bezahlt)AUFSCHLIESSUNG
– Kanal, Wasser, Strom
– Telefon- & Glasfaser im EG (Weiterverteilung in die Wohnungen möglich)- Heizungsart: Zentralheizung, Fernheizung
- Befeuerung: Öl
- Badausstattung: Dusche, Badewanne, Fenster
- Küche: Einbauküche, Offene Küche
-
- HWB-Wert: 202,00 kWh/(m²*a)
- fGEE-Wert: 2,98
- Primärenergieträger: Öl
- Energieausweis-Gebäudeart: Wohngebäude
-
Das Stadthaus befindet sich in zentraler Lage von Ferlach, direkt in der Hauptstraße – einer der begehrtesten Adressen der Stadt. Hier profitieren Sie von einer ausgezeichneten Infrastruktur und kurzen Wegen im Alltag.
Geschäfte des täglichen Bedarfs, Supermärkte, Bäckereien, Banken, Apotheken und Gastronomiebetriebe befinden sich in unmittelbarer Umgebung und sind bequem fußläufig erreichbar. Auch Schulen, Kindergärten, Ärzte sowie das Gemeindeamt liegen nur wenige Gehminuten entfernt.
Dank der zentralen Lage ist das Objekt auch verkehrstechnisch bestens angebunden: Eine Bushaltestelle befindet sich in direkter Nähe, die Landeshauptstadt Klagenfurt ist mit dem Auto in etwa 20 Minuten erreichbar. Auch die slowenische Grenze liegt nicht weit entfernt – ideal für grenzüberschreitend Tätige.
Die Umgebung punktet nicht nur mit urbanem Komfort, sondern auch mit hohem Freizeitwert: Natur, Radwege, die Drau und die umliegende Bergwelt laden zum Erholen und Aktivsein ein.
Ein Standort mit hoher Lebens- und Arbeitsqualität – zentral, vielseitig und lebenswert.
INFRASTRUKTUR
– 50 m zur Adler-Apotheke
– 500 m zum Eurospar
– 800 m zum Billa, DM, Hofer, Karawanken-Apotheke
– 3,6 km zum Badeteich Strau und Badesee Reinig
– 12 km ins Bodental
– 15 km in das Zentrum der Klagenfurter Innenstadt
– 17 km zum Wörthersee
– 67 km nach Laibach / Ljubljana -
- Kaufpreis: 720.000 €
- Käuferprovision: 3% zzgl. 20% USt.
Grundrisse













































































